Как организовать маленький санузел? | Совет дизайнера

Приступая к работе над маленьким помещением, прежде всего нужно принять реальность. Допустим, вы убедились, что дополнительной площади оттяпать неоткуда и санузел остаётся в своих прежних границах. В таком случае вопрос об увеличении пространства стоит отложить в ту же коробку, где вы храните шарф Гриффиндора и волшебную палочку.

Да, зеркальные поверхности, светлые цвета и хорошее освещение творят порой чудеса, но визуальные эффекты - это совсем не то, что поможет вам затолкать стиральную машину в и без того небольшое помещение.

В качестве примера возьмём самую маленькую квартиру-студию, с которой мне когда-либо приходилось работать.

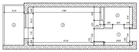
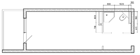
Общая площадь студии 21 квадратный метр. Как вы можете заметить, речи о расширении санузла не идёт: с одной стороны нам мешает и без того узкая прихожая, а с другой вентиляционная шахта.

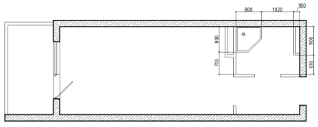
Площадь санузла 3 квадратных метра.

Обратите внимание: На что обратить внимание, когда без дизайнера выбираешь сантехнику для ванной комнаты.

Хотелось бы, конечно, полноценную ванну, возможно даже джакузи, пару умывальников, унитаз и стиральную машинку.

Но уже на этапе подбора ванны реальность больно бьёт по голове, и мы понимаем, что это непозволительная роскошь, даже если ширина её будет поскромнее.

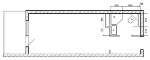
В ситуации, когда на одной чаше весов отказ от ванны в пользу душевой кабины, а на другой перенос унитаза на кухню, достаточно легко сделать выбор.

Так-то лучше.

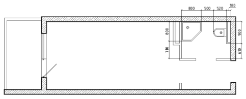
Споры о том, раздельным или совмещенным должен быть санузел не утихнут никогда. Аргументы всех сторон выглядят очень убедительно и каждый выбирает, что ему по душе. Однако в данном случае делить нечего и негде, поэтому минуя все за и против устанавливаем горшок прямо напротив душевой кабины.

На ум сразу приходит такой вариант, однако, он не кажется мне наиболее оптимальным. Если же повернуть унитаз на 45 градусов, сидеть будет гораздо удобнее.

Дело за малым - разместить умывальник и стиральную машину, места для которых, как мне кажется, очевидны.

Мораль сей басни такова: если в 11 лет вам не пришло письмо из Хогвартса, то пользуйтесь теми инструментами, что доступны маглам.

Подать заявку на разработку проекта можно на сайте

Cтудия дизайна интерьеров GAMAK в Санкт-Петербургеgamakstudio.ru

Или в социальных сетях

https://www.instagram.com/interiors_by_gamak/

https://vk.com/gamak_studio

#санузел #ванная комната #душевая кабина #планировка квартиры #дизайн маленькой ванной #интерьер ванной

Еще по теме здесь: Строим.

Источник: Как организовать маленький санузел? | Совет дизайнера.